top of page
NEWEST
HOME
ABOUT
CONTACT
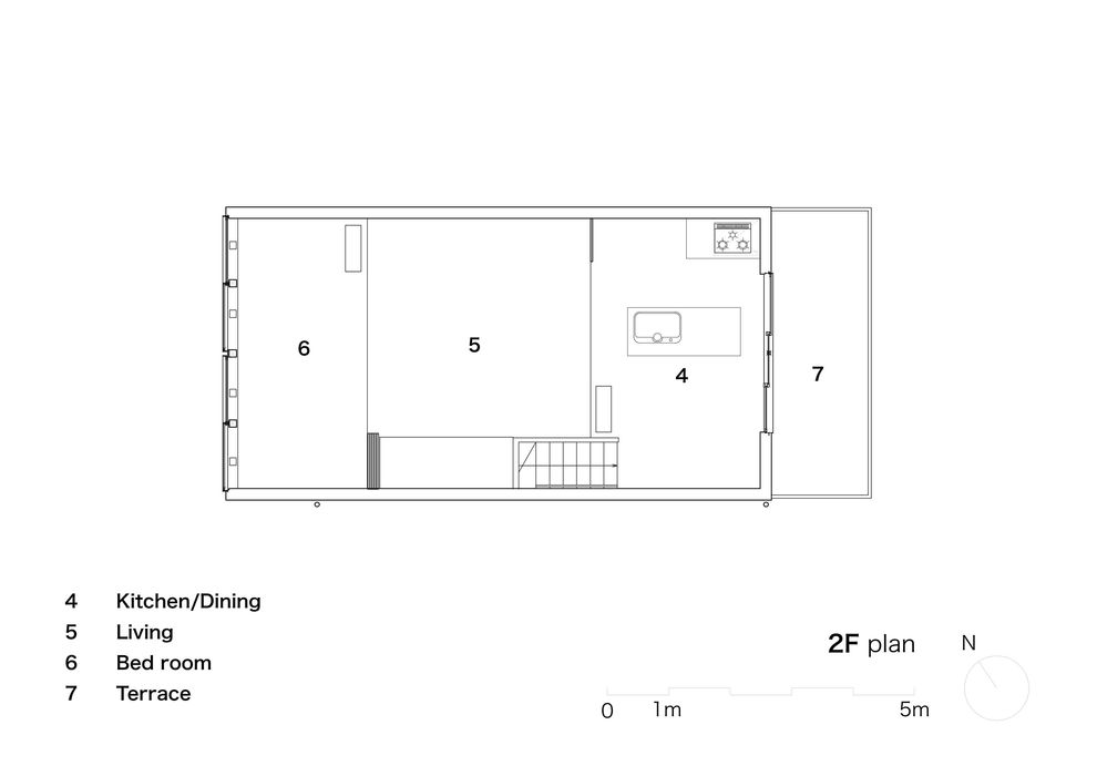
HOUSE NKG
用途:個人住宅
竣工年:2012年
所在地:神奈川県川崎市
設計協力:出口亮
構造設計:田尾玄秀
施工:栄伸建設
写真:ナカサ&パートナーズ
HOME
ABOUT
CONTACT
bottom of page